|
戶型面積:65平小復式
裝修風格: 新中式風格 工程熱線0551-63732980

本戶型的風格說明:此戶型為直通式框架結構戶型,原結構沒有分隔,戶型窗戶為西向,戶型采光不是很理想。
本案為新中式風格,融入了一些原木質感的隔斷和裝飾體現空間的厚重感;追求中國傳統文化,思想理想兼具感性,熱愛生活的人群。

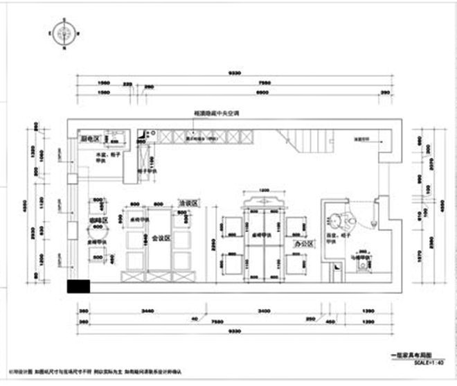
工程熱線0551-63732980中式辦公室裝修設計,此辦公室因為層高有線,所以把中央空調隱藏到了樓梯下方展示柜的頂部,盡量不影響房高。在樓下會議區的頂面做了特殊處理,最高限度的保留房高。

辦公室改造設計說明:
一層:辦公室裝修首層配備了一個完整的四人辦公空間,以及一個六人會議兼洽談區,功能分區都采用了裝飾隔斷的分割,具有相對的私密性,因為隔斷采用鏤空形式,在最大程度上保留了光線的通透程度。為了充分增加展示空間,設計師分別在樓梯下面、會議桌的南邊做了一組展示柜。

二層:辦公室裝修此樓層分別設立了一個辦公室和一個財務室,同時也分割出了儲物空間,二層也同樣采用高通透性的玻璃隔斷體現現代化辦公的感覺,同時設計師也巧妙的在2.4米層高的有限空間設置中央空調的室內機位置,把風機隱藏到了辦公室和財務室的柜子頂部。
工程熱線0551-63732980
此套合肥辦公室裝修案例由合肥裝飾公司【泓鑒裝飾】整理發布,轉載請注明來自合肥裝飾公司【泓鑒裝飾】網。合肥辦公室裝修、店面裝修盡在泓鑒裝飾,工程熱線0551-63732980,泓鑒裝飾歡迎您咨詢。 |