|
裝修熱線:0551-63732980
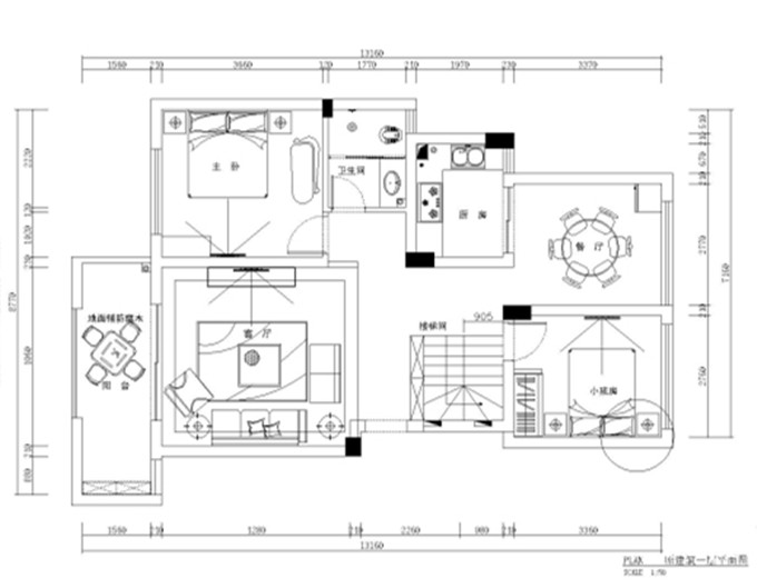
平面布置圖一層
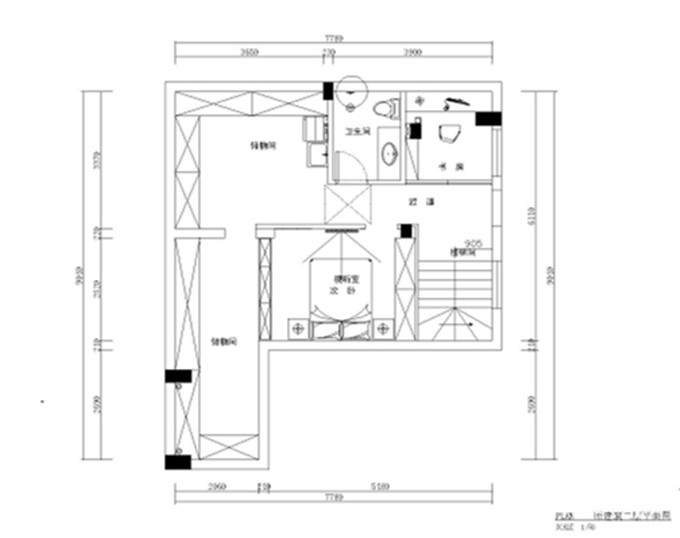
平面布置圖二層
這個是一套現代風格復式樓裝修設計,整個工程造價: 半包11萬,

裝修熱線:0551-63732980

泓鑒合肥裝修公司 裝飾設計師設計說明:本案房型為復式結構,一樓戶型采光充足通風流暢。在入戶進門處我們把鞋柜和玄關融入在一起使的進門從容大方,同時把餐廳定位在原來的一個小房間里這樣擴大了廚房提升操作空間,餐廳也擴大營造了整個就餐氛圍。
二樓的房型也沒有浪費的空間,我們利用房型的最高處分割出了書房,次臥,洗衣房,和兩個儲藏室,高效利用了每一個平方,通過對墻體的拆除改造出窗戶和一個房門大大的提升了二樓的采光和通風! 而在裝修效果方面,泓鑒裝飾設計師選擇的是現代風格,現代風格舍棄傳統其他繁瑣復雜的造型,以簡潔明了的線條和清爽的石膏造型和黑鏡貫穿全房,使的整體清爽,大方在低調間又帶著奢華;這也契合了業主一貫的低調作風,在繁華的鬧市,有著這一片自然寫意的休息空間,淡雅而不失時代烙印。此案例由合肥環保裝修倡導者與堅定執行者泓鑒裝飾整理發布,喜歡此案例的你還不快撥打0551-63732980聯系我們。
|